Details
Gallery
Floor Plans
Contact
87 Canaan Road #6A, Salisbury, CT
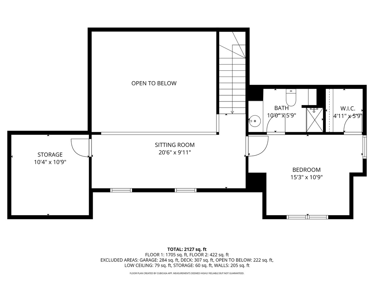
Floor Plans
Floor Plan 1
Floor Plan 2
Contact Us
Laurie Dunham
Licensed Real Estate Salesperson
C: 203.985.5974
I'm interested in Video Chat
No
Yes
First Name
Last Name
Email Address
Phone Number
Message
I’m interested in 87 Canaan Road #6A in Salisbury.
Request Info